About Us

Our HDB home

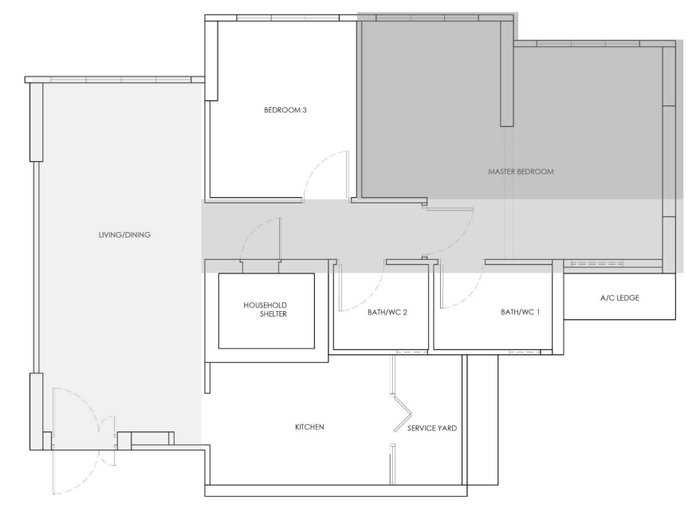
Home is in Bukit Batok, a 4-room HDB flat roughly 92sqm. It's pretty small.

Floor plan

Sometimes we wish we bought a 5-room flat instead. Especially when we visit or see other 5-room flats, or think about having to fit multiple kids inside.

But 4-room HDB flats are nothing bad. It means lesser floor space to clean, lesser empty spaces, and lower property taxes and conservancy charges to pay! It's even bigger than some ECs, so that's some consolation. In any case,we feel that it's better to just upgrade when you've the means to in future, rather than see your first property as somewhere you'll stay forever in.

When we started this journey both of us had zero idea what we wanted and needed. We just jumped in and went for the ride. We are still nowhere near being competent in being homeowners. But we hope our experience here can help you avoid some of the mistakes we made and share some of the things we learnt! Most of the things we have learnt is largely on renovation (designing and constructing our home) and shopping (filling up the home with stuff).

You can check out the main stuff we have written above in the drop down menus. You can also check out how our home actually looks like, at the end of the renovation journey. It's not the cheapest, the prettiest, the most futuristic, or the most minimalistic, but it's what we wanted. We really enjoy staying here. At least till everything starts breaking down!

Who we are

That's us

This is a space where we track our milestones - our renovation process, our furniture shopping, our key collection. Like every couple out there, we buy stuff. We often face a dilemma. Do we buy cheap, or do we buy good? If it’s cheap, it ain’t good, and if it’s good, it ain’t cheap. On the one hand we want items that are as good quality as possible. But we are also people who are always on the lookout to get our next bargain. (Case in point: we ate almost only fast food and managed to spend SGD 5k for our 23-day honeymoon to the US. No regrets there, ever.)

So our answer has been to buy at the best possible value. Some ways to buy stuff net you a better bargain. Maybe it’s slightly more expensive, but it is still a better bargain. We hope this space gives you some practical tips so you can also learn from our mistakes and save a couple of dollars in your everyday lives. Renovation and furniture shopping cost a ton, so there's always room to grab a bargain or two. Why spend more when you can spend less?